Ledige erhvervslejemål
Her kan du få et overblik over, hvilke erhvervslejemål, der er ledige – og deres beliggenhed i Grangårdscentret
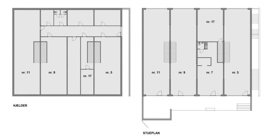
ERHVERVSLOKALER I STUEPLAN
Erhvervs- eller butikslokaler i stueplan med gode tilkørselsforhold og gratis parkeringspladser.
Grangårdscentret er et lyst og professionelt sted med gode faciliteter – perfekt til en butik eller anden erhverv, der ønsker en central beliggenhed i Støvring med mulighed for leje af kælderrum.
Lejevilkår:
– Husleje pr. måned afhænger af lokale (eks. moms og fællesudgifter)
– Depositum: 3 måneders husleje
– El, vand og varme afregnes efter forbrug
– Fri parkering inkluderet i lejen
– Opsigelse: 6 måneder
Yderligere beskrivelse af de enkelte lejemål samt billeder af lejemålene – KLIK HER.
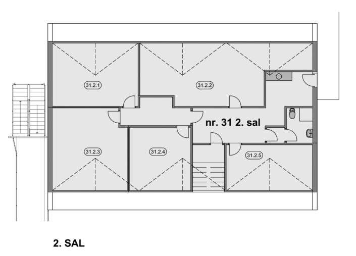
LOKALERNE 31 – 2. sal
Lokalerne 31 udgør i alt 187 m² fordelt på 5 kontorer/lokaler i forskellige størrelser. Lokalerne kan lejes enkeltvis og deles om fælles faciliteter:
– Gangareal/venterum
– Toilet med bruser
– Tekøkken med opvaskemaskine
Aktuelt er ét lokale udlejet til en massør. De øvrige fire lokalerne er ledige, derfor vil der være rig mulighed for at kunne udleje flere lokaler.
Alle rum har et dejligt lysindfald.
Der er netstik i alle kontorer og mulighed for fibernet.
Lokalerne 31 er beliggende på 2. sal i samme bygning som Støvring eSport og Støvring Dyreklinik i stueetagen og Tandlægerne Grangårdsentret på 1. sal. Der er elevator i ejendommen.
Gode tilkørselsforhold og gratis parkeringspladser tilknyttet ejendommen.
Lejevilkår:
– Husleje pr. måned afhænger af lokale
– Depositum: 3 måneders husleje
– El, vand og varme inkluderet i lejen
– Fri parkering inkluderet i lejen
– Opsigelse: 6 måneder
Et lyst og professionelt sted med gode faciliteter – perfekt til behandlere eller andre erhverv, der ønsker en central beliggenhed i Støvring.
Yderligere beskrivelse af de enkelte lejemål samt billeder af lejemålene – KLIK HER.
Status på erhvervslejemål – Ledige, reserverede og udlejede
| Lokale | Kvadratmeter | Kvadratmeter kælder | Bemærkninger | Husleje pr. md. | Status |
|---|---|---|---|---|---|
| 5 | 124 | 84 | Ligger i stueplan | – | Udlejet – Alanya Pizza |
| 7 | 66 | 16 | Ligger i stueplan | – | Udlejet – Guldsmed Lise |
| 9 | 118 | 80 | Ligger i stueplan | – | Udlejet – Café KeldH |
| 11 | 124 | 124 | Ligger i stueplan | – | Udlejet – Café KeldH |
| 17 | 52 | 40 | Ligger i stueplan | – | Udlejet – Salon Rosenfeld |
| 21 | 103 | Ligger i stueplan | 7.300 | LEDIGT | |
| 23 | 145 | Ligger i stueplan | – | Udlejet – Støvring Dyreklinik | |
| 27 | 86 | 86 | Ligger i stueplan | – | Udlejet – Støvring eSport |
| 31.2.1 | 27 | Beliggende på 2. sal 5 lokaler, fælles gang, toilet, tekøkken | Mulighed for at leje flere lokale sammen | 3.700 | LEDIGT |
| 31.2.2 | 41 | Beliggende på 2. sal 5 lokaler, fælles gang, toilet, tekøkken | Mulighed for at leje flere lokale sammen | 5.400 | LEDIGT |
| 31.2.3 | 29 | Beliggende på 2. sal 5 lokaler, fælles gang, toilet, tekøkken | Mulighed for at leje flere lokale sammen | 3.900 | LEDIGT |
| 31.2.4 | 19 | Beliggende på 2. sal 5 lokaler, fælles gang, toilet, tekøkken | Mulighed for at leje flere lokale sammen | 2.800 | LEDIGT |
| 31.2.5 | 18 | Beliggende på 2. sal 5 lokaler, fælles gang, toilet, tekøkken | – | Velvære Massage |



